additional links
|
home
|
contact us
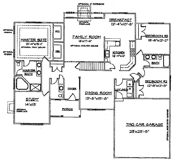
Windham
« Back to Models
Model Information
2,267 sq. ft.
Rancher
3-Bedroom; 2.5 Bath
Great Room, Study & Dining Room
Floorplans
First Floor
Elevations
Elevation 1
Elevation 2