additional links
|
home
|
contact us
Brighton
« Back to Models
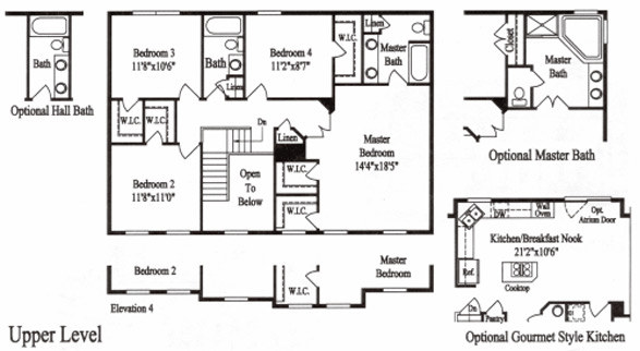
Model Information
2,319 sq. ft.
2-Story Colonial
4-Bedroom; 2.5 Bath
Deluxe Bath Option
Floorplans
Main Level
Upper Level & Options
Elevations
Elevation 1
Elevation 2
Elevation 3
Elevation 4